0421 84803893 | info@habenhaus.de
2025
Baujahr
63 m²
Wohnfläche
2
Zimmer

Objektnummer 2025-00027

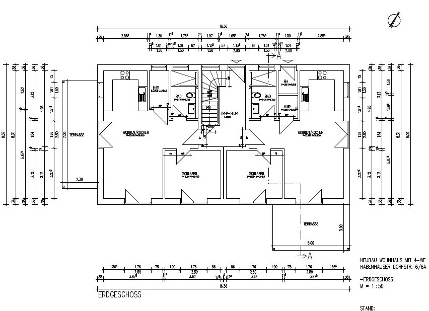
Moderne 2-Zimmer-Neubauwohnung mit Terrasse ins Grüne – Erstbezug in Bremen-Habenhausen

Reserviert
Grunddaten
  • Objektart
    Wohnung
  • Objekttyp
    Erdgeschoss
  • PLZ
    28279
  • Ort
    Bremen
  • ImmoNr
    2025-00027
  • Baujahr
    2025
  • Energieausweis
    Bedarfsausweis
  • Energieausweis gültig bis
    01.12.2035
  • Status
    Aktiv
  • Flächenaufstellung
  • Wohnfläche
    ca. 63 m²
  • Nutzfläche
    ca. 8 m²
  • Anzahl Zimmer
    2
  • Anzahl Badezimmer
    1
  • Stellplätze
    1
  • Anzahl Balkone
    1
  • Raumangebot und Ausstattung
  • Zustand
    Erstbezug
  • Mietpreis
  • Kaltmiete
    945,00 €
  • Endenergiebedarf
    1 kWh/(m²a)
  • Kaution
    1.890,00 €
  • Nebenkosten
    120,00 €
  • Beschreibung

    Dieser attraktive Neubau im Herzen von Habenhausen bietet 4 Wohnungen, die ab dem 01.11/ 01.12.2025 als Erstbezug bezogen werden können.

    Jede Wohnung bietet 2 Zimmer mit offener Küche und Badezimmer, verteilt auf 63 m². Ein besonderes Highlight der Wohnungen ist die jeweilige Terrasse/ der jeweilige Balkon.

    Der große Wohn-/Essbereich und die sonnige Terrasse mit Blick ins Grüne sorgen für ein angenehmes Wohngefühl.

    Erstbezug nach Fertigstellung!

    Lage

    Ruhige Lage in Bremen-Habenhausen

    Kitas & Schulen fußläufig erreichbar (ca. 0,5 km)

    Bremen-City ca. 4,7 km, A1-Anschluss ca. 2 km

    Alles für den Alltag – von Lebensmitteln über Drogerieartikel bis hin zu Fachgeschäften – befindet sich bequem in fußläufiger Nähe: das Werder Karree und Marktkauf ist nur ca. 200 m entfernt.

    Hausarztpraxen, z. B. in der Karl-Marx-Straße, sind in unmittelbarer Nähe (< 100 m) erreichbar, weitere medizinische Angebote folgen ebenfalls in überschaubarer Distanz (< 500 m).

    Der Werdersee – Bremens größte Wasserfläche mit Strand, Liegewiesen & Freizeitmöglichkeiten – ist nur rund 400m entfernt, bequem zu Fuß erreichbar. Ideal, um spazieren zu gehen, Sport zu treiben oder im Sommer zu entspannen.

    Ausstattung

    Neben der hervorragenden Lage bieten die Wohnungen folgende Ausstattungsmerkmale:

    – 2 Zimmer
    – ca. 63 m²
    – Terrasse oder Balkon
    – Einbauküche (Visualisierung siehe Bilder)
    – Fußbodenheizung in allen Räumen
    – Modernes Bad mit bodengleicher Dusche
    – Hochwertige Bodenbeläge Vinyl
    – Elektrische Außenrollläden
    – moderne Kunststofffenster mit 3-fach Verglasung
    – Videogegensprechanlage, Netzwerkverkabelung, SAT-Anlage

    Stellplätze am Haus sind für 50 €/ Stück separat anmietbar.
    Zusätzlich werden ausreichend Stellplätze für Fahrräder gestellt.

    Hinter dem Haus werden vermieterseitig Kellerersatzräume gestellt.

    Sonstige Angaben

    Erstbezug nach Fertigstellung

    Der Energieausweis ist derzeit in Vorbereitung und wird nach Fertigstellung des Baus nachgereicht.
    contact_person

    Herr Sebastian Park

    Habenhauser Dorfstr. 16
    28279 Bremen

    +49421 84803893

    Ansprechpartner

    Herr Sebastian Park

    Habenhauser Dorfstraße 16
    28279 Bremen

    +4942184803893

    anfrage@habenhaus.de

    EXPOSÉ anfordern

    Gerne übersenden wir Ihnen unser ausführliches Exposé mit einer detaillierten Beschreibung des Objektes samt Planunterlagen per E-Mail und auf Wunsch zusätzlich per Post.

    Deine Anfrage zu der Immobilie „Moderne 2-Zimmer-Neubauwohnung mit Terrasse ins Grüne – Erstbezug in Bremen-Habenhausen“ (2025-00027)

    * Pflichtangaben, alle weiteren Felder sind freiwillige Angaben

    Image 01